FUTURAMA 1939-40
GM exhibit at the 1939-40 New York World's Fair.
Futurama was an exhibit and ride at the 1939 New York World’s Fair designed by theatrical and industrial designer Norman Bel Geddes.
It was presented a possible model of the world 20 years into the future (1959–1960). The installation was sponsored by the General Motors Corporation and was characterized by automated highways and vast suburbs.
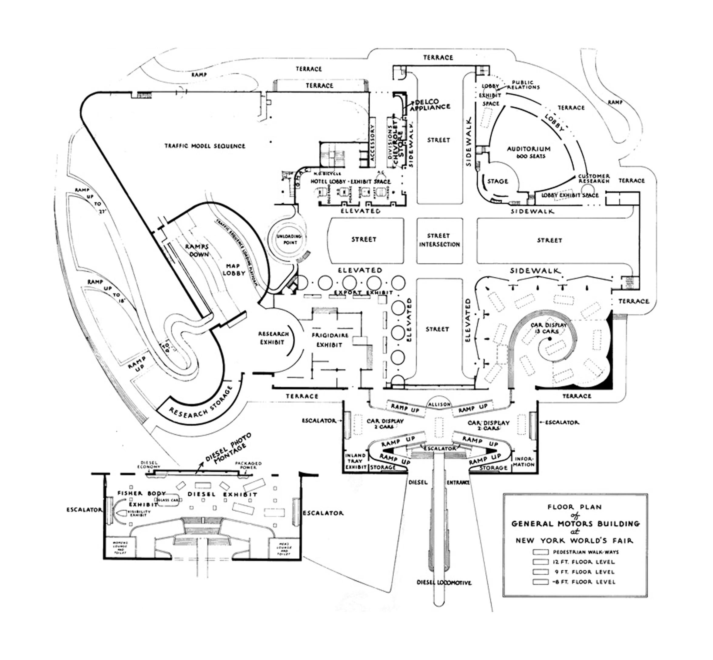
The 35,738 square-foot “Highways and Horizons” exhibit by Architect, Albert Kahn, Inc. had 322 moving chair-cars, each equipped with its own sound system for a “personal tour,” to view the “future world of the 1960s”.
General Motors was a star of the 1939 World’s Fair, held in New York City, with its vast “Highways and Horizons” exhibit and “Futurama” model of the future, depicting the prospects and possibilities of industrial and transportation progress. Designed by noted American industrial designer Norman Bel Geddes, Futurama introduced the concept of autonomous travel with its vision of technologically advanced superhighways where cars would navigate curves at speeds up to 50 miles per hour using “automatic radio control” to maintain safe distances.














